Kompletní vestavěný protiproud Taifun je vyroben z bronzového průchodu a nerezového čela (AISI 316).
Vestavný protiproud Taifun je dodáván ve dvou částech a to předmontážní sada a domontážní sada.
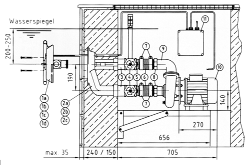
Předmontážní sada: se skládá z bronzové skříně, 2ks mosazných dvojniplů, 2ks mosazných šoupátek, 1ks vzduchové regulace, sady šroubů a těsnění.
Domontážní sada: se skládá z pouzdra trysek včetně krytu, spínacího pneumatického ovládání, sady šroubů a pumpy.
V případě fóliového nebo PP bazénu je třeba doobjednat i přírubovou sadu.
Vestavný protiproud Taifun je dodáván ve dvou částech a to předmontážní sada a domontážní sada.
Předmontážní sada: se skládá z bronzové skříně, 2ks mosazných dvojniplů, 2ks mosazných šoupátek, 1ks vzduchové regulace, sady šroubů a těsnění.
Domontážní sada: se skládá z pouzdra trysek včetně krytu, spínacího pneumatického ovládání, sady šroubů a pumpy.
V případě fóliového nebo PP bazénu je třeba doobjednat i přírubovou sadu.
